BEREITS VERKAUFT!Das Townhaus verfügt über eine Wohnfläche von 152 m² verteilt auf drei Etagen. Zum Haus gehören ein herrlicher Südgarten mit ca. 58 m² Fläche sowie großzügige Terrassenflächen. Die Einheit ist über einen separaten Eingang von der Bassermannstraße sowie direkt über die Tiefgarage zu erreichen.
Erdgeschoss:
Das Erdgeschoss mit 70 m² bietet auf 44 m² Platz für Wohnzimmer und Küche. Bodentiefe Fenster sorgen für einen ungestörten Übergang zur Terrasse und dem eigenen Garten. Auf der Etage befinden sich ferner Eingangsbereich/Flur, Gäste-WC und der Hauswirtschaftsraum.
Obergeschoss:
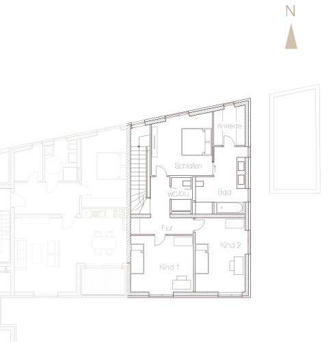
Im Obergeschoss befinden sich ein geräumiges Schlafzimmer mit eigener Ankleide und ein Masterbad. Über einen Flur erreicht man zwei nach Süden ausgerichtete Kinderzimmer, für die ein separates Duschbad mit WC zur Verfügung steht.
Untergeschoss:
Das Townhaus verfügt über einen eigenen Zugang zur Tiefgarage. Ein Hobbyraum mit 27 m² und natürlicher Belichtung schafft Platz für Flexibilität und Stauraum.
Mit dem Kauf des Townhauses können optional bis zu zwei Tiefgaragenstellplätze erworben werden.
Wohnfläche / Nutzfläche
| Gesamt | 189,33 m² |
| Wohnfläche |
152,83 m² |
| Nutzfläche |
36,50 m² |
Alle m²- Angaben sind ca.-Angaben.
GRUNDRISS
» Grundriss (PDF)
PLAN ERDGESCHOSS
Wohnfläche
| EG | |
| Wohnen/Essen |
32,39 m² |
| Küche |
11,94 m² |
| Hauswirtschaft |
6,40 m² |
| Diele |
14,51 m² |
| WC |
2,28 m² |
| Terrasse |
6,66 m² |
| Gartenanteil |
ca. 58 m² |
PLAN OBERGESCHOSS
Wohnfläche
| OG | |
| Schlafen |
15,42 m² |
| Ankleide |
5,18 m² |
| Bad |
13,00 m² |
| Flur |
8,68 m² |
| Kind 1 |
16,00 m² |
| Kind 2 |
16,82 m² |
| WC/DU |
2,73 m² |
PLAN UNTERGESCHOSS
Wohnfläche / Nutzfläche
| UG | |
| Hobbyraum |
27,17 m² |
| Flur |
6,30 m² |
| Schleuse |
3,03 m² |