BEREITS VERKAUFT!Mit 74 m² auf zwei Ebenen ist die Zwei-Zimmer-Wohnung der ideale Rückzugsort für Singles und Paare. Großzügige Terrassenflächen, ein Hobbyraum sowie ein separater Eingang zur Tiefgarage runden das Angebot ab.
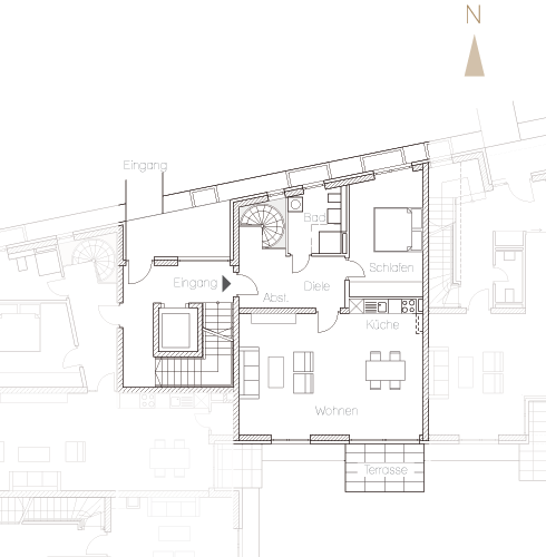
Erdgeschoss:
Der großzügige Wohnraum mit offener Küche erstreckt sich auf 40 m² im Erdgeschoss. Bodentiefe Fenster geben den Blick frei auf den Süd-Garten mit knapp 50 m² Fläche und eigener Terrasse.
Schlafzimmer und Bad sind nach Norden gerichtet. Ein kleiner Abstellraum schafft flexible Platzlösungen.
Untergeschoss:
Die Wohnung verfügt über einen eigenen Zugang zur Tiefgarage und einen Hobbyraum mit 28 m² und natürlicher Belichtung.
Mit dem Kauf der Wohnung kann optional ein Tiefgaragenstellplatz erworben werden.
Wohnfläche / Nutzfläche
| Gesamt | 110,58 m² |
| Wohnfläche |
74,23 m² |
| Nutzfläche |
36,35 m² |
Alle m²- Angaben sind ca.-Angaben.
GRUNDRISS
» Grundriss (PDF)
PLAN ERDGESCHOSS
Wohnfläche
| EG | |
| Wohnen/Essen |
39,47 m² |
| Abstellen |
1,04 m² |
| Diele |
9,51 m² |
| Bad |
6,05 m² |
| Schlafen |
15,01 m² |
| Terrasse |
3,15 m² |
| Gartenanteil |
ca. 49 m² |
PLAN UNTERGESCHOSS
Wohnfläche / Nutzfläche
| UG | |
| Hobbyraum |
28,20 m² |
| Flur |
4,24 m² |
| Flur 2 |
3,91 m² |