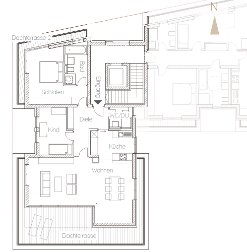
VERKAUFT!Das Penthaus verfügt über eine Wohnfläche von 105 m². Mit 3 Zimmern bietet das Penthaus einen idealen Grundriss für die kleine Familie, Singles oder Paare. An den großen Wohn-Essbereich mit 39 m² schließt sich eine herrliche nach Süden ausgerichtete Dachterrasse.
Das nach Nord-Westen ausgerichtete Schlafzimmer verfügt über eine eigene Terrasse. Das Badezimmer ist direkt vom Schlafzimmer als Bad en suite begehbar.
Das Kinderzimmer mit knapp 11 m² ist nach Westen gerichtet. Ein weiteres Duschbad mit WC ist vom Flur aus zu erreichen.
Bodentiefe Fensterflächen eröffnen von allen Räumen Blicke ins Freie.
Im Keller befindet sich ein zum Penthaus gehörendes praktisches Kellerabteil.
Mit dem Kauf des Penthauses kann optional ein Tiefgaragenstellplatz erworben werden.
Wohnfläche / Nutzfläche
| Gesamt | 110,08 m² |
| Wohnfläche |
105,94 m² |
| Nutzfläche |
4,14 m² |
Alle m²- Angaben sind ca.-Angaben.
GRUNDRISS
» Grundriss (PDF)
PLAN DACHGESCHOSS
Wohnfläche
| DG | |
| Wohnen/Essen |
39,15 m² |
| Küche |
8,51 m² |
| Kind |
10,50 m² |
| Diele |
7,96 m² |
| Bad |
6,50 m² |
| Schlafen |
17,17 m² |
| WC/DU |
3,31 m² |
| Dachterrasse |
10,00 m² |
| Dachterrasse 2 |
1,83 m² |
PLAN UNTERGESCHOSS
Nutzfläche